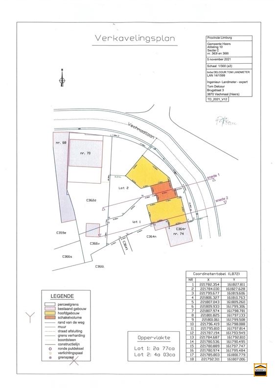
Adres
:
Vechmaallaan HOB, 3870 HEERS
Grondoppervlakte
:
277 m²
Voorgevel
:
9 m
Perceel breedte
:
12 m






