Bouwgrond te HEERS (3870)

€ 115.000

Foto 1 van 2
  • Bouwgrond - HEERS
  • Bouwgrond - HEERS
Algemeen
Adres
:
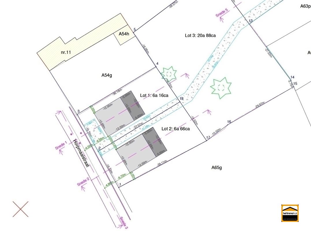
Horpmaalstraat , 3870 HEERS
Grondoppervlakte
:
616 m²
Voorgevel
:
11 m
Perceel breedte
:
17 m
Financiele informatie
Prijs
:
€ 115.000
Type
:
12%
Registratierechten
:
€ 13.800
Honorarium notaris incl btw
:
€ 2.032
Totale kosten
:
€ 15.832
Totale kostprijs
:
€ 130.832
kleine afwijkingen mogelijk
Omschrijving
Mooie bouwkavel van 6are 16ca geschikt voor het bouwen van een
open bebouwing. (lot 1 op plan in bijlage)

Het perceel grenst aan de Horpmaalstraat en is gelegen in een landelijke omgeving.
De kavel heeft een oostelijke oriëntatie.

De bouwvoorschriften zijn ruim opgevat waardoor je tal van mogelijkheden hebt om
tot je droomwoning te komen.

Wenst U meer informatie over deze bouwgrond of een inzage in de
bouwvoorschriften? Contacteer ons via 012 26 22 05 of info@hetimmohuis.be
  
Stedenbouwkundige informatie
Voorkooprecht
:
Nee
Bouwvergunning verkregen
:
Nee
Dagvaarding en herstelvordering
:
Nog niet aangevraagd
Verkavelingsvergunning
:
Ja
Bestemming
:
Woongebied met landelijk karakter
P-score
:
Klasse D
E-peil
:
0
Erfgoed
:
Nee
Comfort
Verwarming
:
Niet meegedeeld
Aansluiting aardgas
:
Nee
Aansluiting waterleiding
:
Nee
Lift
:
Nee
Keuken
:
Niet meegedeeld
Google kaart
De kaart vergroten
Uitzicht op straat

Ons aanbod

Bouwgrond - HEERS
Bouwgrond
€ 119.000
HEERS
Landelijk gelegen perceel grond gelegen in woongebied met een oppervlakte van 6are 58ca. Het perceel heeft een zuid-oo...
Landelijk gelegen perceel grond gelegen in woongebied met een oppervlakte van 6are 58ca. Het perceel heeft een zuid-oost oriëntatie en heeft een straatbreedte van ca. 14.84m. Op het gelijkvloers kan je een woning met een gevelbreedte van 9.72m bouwen. De gelijkvloerse verdieping mag maximum 15m diep zijn. Op de ...
Bouwgrond - TONGEREN-BORGLOON
Bouwgrond
€ 125.000
TONGEREN-BORGLOON
Uitzonderlijk perceel bouwgrond voor open bebouwing op wandelafstand van het centrum van Borgloon Dit perceel is ge...
Uitzonderlijk perceel bouwgrond voor open bebouwing op wandelafstand van het centrum van Borgloon Dit perceel is gelegen binnen een rustige verkaveling aan de rand van het centrum van Borgloon. Bijgevolg zijn winkels, scholen, recreatiemogelijkheden, etc. allemaal op wandelafstand bereikbaar. Ook de verbinding...
Grond - HEERS
Grond
€ 85.000
HEERS
Uitzonderlijk perceel met momenteel de restanten van een voormalige hoevetje De hoeve ligt in puin en de goedgekeurde...
Uitzonderlijk perceel met momenteel de restanten van een voormalige hoevetje De hoeve ligt in puin en de goedgekeurde bouwplannen voor de restauratie zijn reeds voorhanden en zijn inbegrepen in de prijs. De bouwplannen kunnen opgevraagd of ingekeken worden op kantoor. De erfgoedsubsidie kan voor het restauratied...